Saltar al contenido
Arastur
Arastur
  • Inicio
  • Conócenos
  • Arastur Urbanismo
    • Qué es
    • Servicios
    • Proyectos
  • Arastur Edificación
    • Qué es
    • Servicios
    • Proyectos
CONTACTO
  • Inicio
  • Conócenos
  • Arastur Urbanismo
    • Qué es
    • Servicios
    • Proyectos
  • Arastur Edificación
    • Qué es
    • Servicios
    • Proyectos
  • Contacto

Archivos del Portafolio: Urbanismo

Estás aquí:
  1. Inicio
  2. Project
LupaDetalles

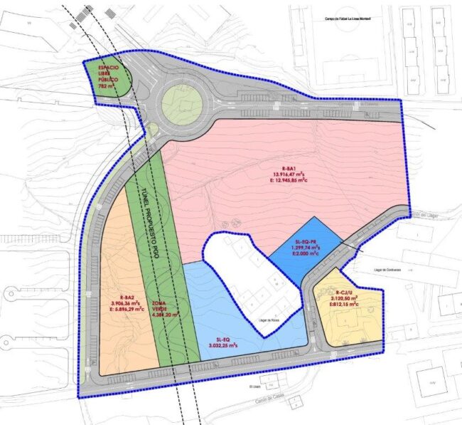
ÁREA G-13-1 ZARAGOZA

UrbanismoPor adminabril 26, 2022

Proyecto de urbanización del área G-13-1 del PGOU de Zaragoza.
Generación de espacios de calidad para los vecinos y resolución de acceso y comunicaciones.
Cliente: Gestión Común.

LupaDetalles

BALSA Y DEPÓSITO AGUA, ZUERA

UrbanismoPor adminabril 26, 2022

Proyecto de ejecución y dirección de obras de balsa y depósito de agua potable en Zuera
Cliente: Ayuntamiento de Zuera.

LupaDetalles

SECTOR “LA GÁNDARA”, GURIEZO

UrbanismoPor admindiciembre 2, 2019

Proyecto de compensación y proyecto de urbanización del PP SAU-2 “La Gándara” de las normas subsidiarias de Guriezo (Cantabria).
Cliente: Aliseda.

LupaDetalles

SUI-4 CALATORAO

UrbanismoPor adminnoviembre 8, 2019

Proyecto de reparcelación del SUI-4 del PGOU de Calatorao.
Nuevo desarrollo de 2.236.305 m2 de suelo urbanizable industrial paralelo a la A2.
Cliente: Junta de Compensación SUI-4 Calatorao.

LupaDetalles

UE4 COSUENDA

UrbanismoPor adminnoviembre 8, 2019

Proyecto de reparcelación y urbanización de la UE4 de Cosuenda.
Desarrollo de suelo urbano no consolidado en zona limítrofe del municipio.
Cliente: Ayuntamiento de Cosuenda.

LupaDetalles

C/ PEDRO IV, HUESCA

UrbanismoPor adminnoviembre 8, 2019

Proyecto de urbanización en el ARU 41910-1 de Huesca, en c/ Pedro IV.
Integración de la muralla de Huesca como elemento protegido por patrimonio dentro de la actuación urbanística.
Cliente: Inversiones Inmobiliarias Canvives.

LupaDetalles

APP-113 GIJÓN

UrbanismoPor adminnoviembre 8, 2019

Plan parcial del ámbito Camino de Caleros, Gijón.
Ordenación urbanística con generación de espacios libres y viarios para la conexión con la ciudad.
Cliente: Servihábitat.

LupaDetalles

PGOU ALFAJARÍN

UrbanismoPor adminagosto 7, 2019

Texto refundido del PGOU de Alfajarín.
Cliente: Ayuntamiento de Alfajarín.

12

Oficinas centrales

Aragón

  • Paseo Independencia 22, 2ª planta 50004, Zaragoza
  • 976 210 115
  • info@arastur.es

Delegaciones

Zaragoza
Asturias
Bilbao
Burgos
Madrid

De interés

Conócenos
Urbanismo
Edificación
Contacto
© Arastur - 2021. Todos los derechos reservados.

Aviso legal | Política de privacidad | Política de cookies

Ir a Tienda
Gestionar el consentimiento de las cookies
Para ofrecer las mejores experiencias, utilizamos tecnologías como las cookies para almacenar y/o acceder a la información del dispositivo. El consentimiento de estas tecnologías nos permitirá procesar datos como el comportamiento de navegación o las identificaciones únicas en este sitio. No consentir o retirar el consentimiento, puede afectar negativamente a ciertas características y funciones.
Funcional Siempre activo
El almacenamiento o acceso técnico es estrictamente necesario para el propósito legítimo de permitir el uso de un servicio específico explícitamente solicitado por el abonado o usuario, o con el único propósito de llevar a cabo la transmisión de una comunicación a través de una red de comunicaciones electrónicas.
Preferencias
El almacenamiento o acceso técnico es necesario para la finalidad legítima de almacenar preferencias no solicitadas por el abonado o usuario.
Estadísticas
El almacenamiento o acceso técnico que es utilizado exclusivamente con fines estadísticos. El almacenamiento o acceso técnico que se utiliza exclusivamente con fines estadísticos anónimos. Sin un requerimiento, el cumplimiento voluntario por parte de tu Proveedor de servicios de Internet, o los registros adicionales de un tercero, la información almacenada o recuperada sólo para este propósito no se puede utilizar para identificarte.
Marketing
El almacenamiento o acceso técnico es necesario para crear perfiles de usuario para enviar publicidad, o para rastrear al usuario en una web o en varias web con fines de marketing similares.
Administrar opciones Gestionar los servicios Gestionar proveedores Leer más sobre estos propósitos
Ver preferencias
{title} {title} {title}